|
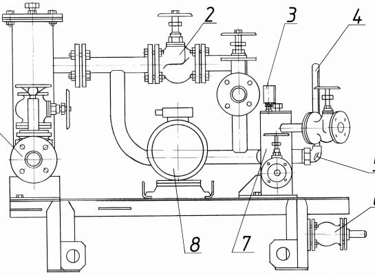
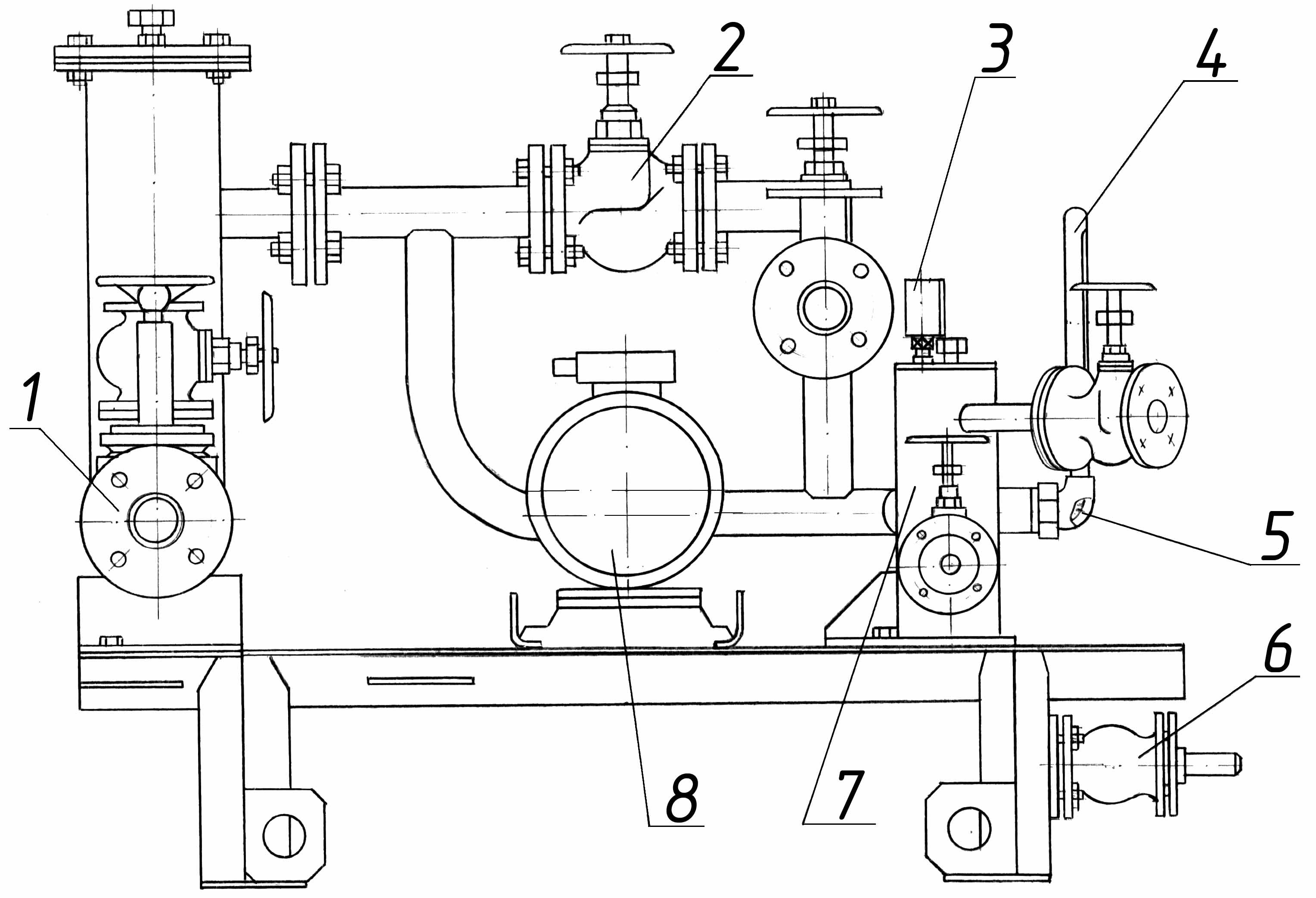
ДС-158 00.20.000 Насосная станция теплоносителя. |
|||||||
|
Поз. |
Обозначение |
Наименование |
Масса, 1шт., кг |
Габариты, мм (длина, ширина, высота) |
Кол-во на изделие |
Примечание |
|
|
ДС-185 |
ДС-158 |
||||||
|
1. |
ДС-185/373212707 |
Клапан запорный Ду50 |
|
|
1 |
1 |
Р = 25 кгс/см2 |
|
2 |
ДС117-2Е 08.01.470 |
Клапан |
5,8 |
170×237 |
2 |
2 |
|
|
|
|
входит: |
|
|
|
|
|
|
|
ДС-185/373212339 |
Клапан Ду40 |
|
|
2 |
2 |
|
|
3 |
ДС-185/421213514 |
Манометр |
|
|
1 |
1 |
|
|
4 |
ДС-185/421190095 |
Оправа |
|
|
1 |
1 |
|
|
5 |
ДС-185/432122167 |
Термометр |
|
|
1 |
1 |
|
|
6 |
ДС-185/371211544 |
Клапан запорный сальниковый |
|
|
4 |
4 |
|
|
7 |
ДС-158 00.18.280 |
Деаэратор |
9,45 |
283×253×520 |
1 |
1 |
|
|
8 |
ДС-185/363193001 |
Агрегат электронасосный |
|
|
1 |
1 |
|

Замена системы управления на АБЗ Bennighoven MBA 2000
Год: 2023

Асфальтный завод в городе Енисейск
Осуществлена модернизация перевод на 5 фракций.
Установлен агрегат целлюлозной добавки.
Год 2023

Асфальтный завод ДС-185 в городе Ухта.
Полное обновление абз с его сборкой на новой площадке. Поднята производительность до 60т/ч в летний период и 40т/ч в осенне/ весенний период. Установлены - полностью новая башня, агрегат питания, горелка 6.2мвт, агрегат целлюлозной добавки, минерального порошка, адгезионная добавка
Год 2023.

Силами компании ВесПро проведена капитальная реконтрукция АБЗ в г. Саратов. Нами была произведены замены: сушильного агрегата целиком, агрегат питания, система пылеочистки, блока грохота на 6 фракций с бункером горячих материалов.
Год 2024.

Проведены работы по замене грохота, бункера горячих материалов и весов на 1000кг.
Завод переведен на работу с шестью фракциями.
Год: 2024

Замена системы управления на АБЗ УДМ-120
Год: 2023

Замена системы управления на АБЗ Marini TopTower 2000
Год: 2023

Замена системы управления на АБЗ ДС-185
Год: 2023