|
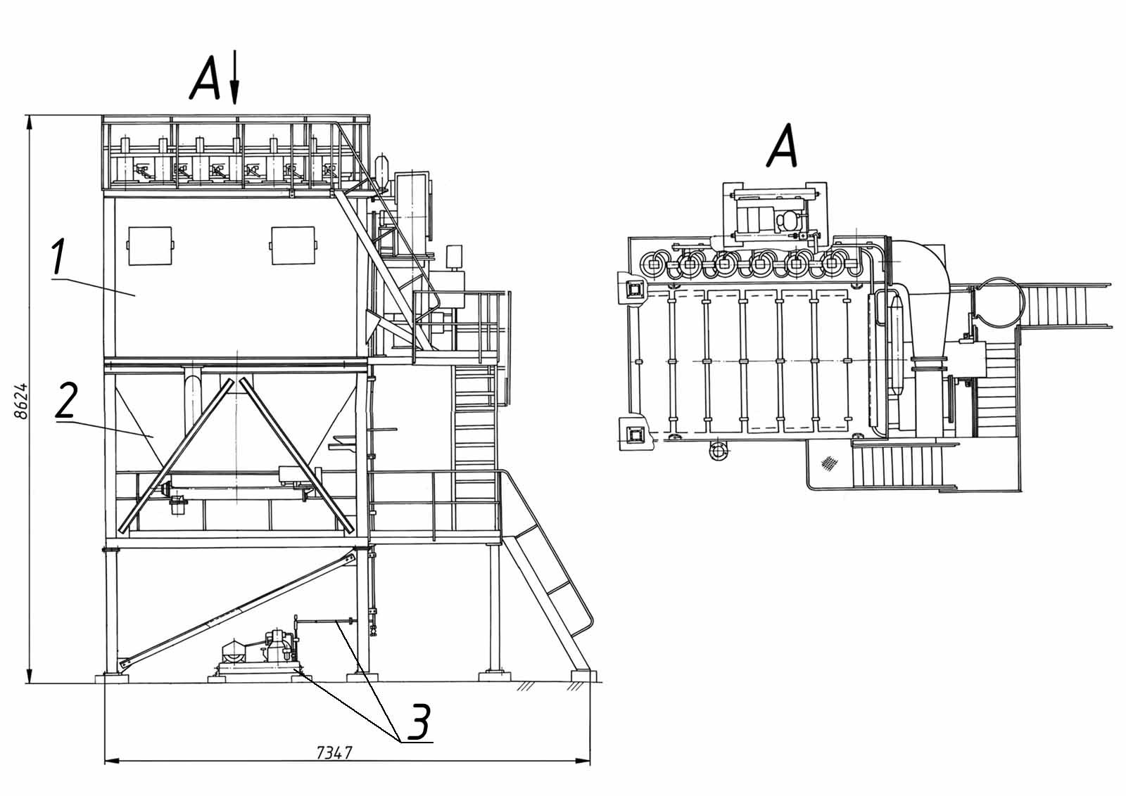
ДС-18567 49.00.000 Фильтр рукавный (по запчастям) |
|||||||
|
Поз. |
Обозначение |
Наименование |
Масса, 1шт., кг |
Габариты, мм (длина, ширина, высота) |
Кол-во на изделие |
Примечание |
|
|
ДС-185 |
ДС-158 |
||||||
|
1. |
ДС-18567 49.01.000 |
Блок фильтра |
6900 |
6180×3070×3310 |
1 |
- |
см. раскрытие |
|
2. |
ДС-18567 49.02.000 |
Блок бункера |
2125 |
4082×2810×2816 |
1 |
- |
|
|
|
|
входит: |
|
|
|
|
|
|
|
ДС-18567 49.02.310 |
Шнек |
344,5 |
2490×900×500 |
1 |
- |
см. раскрытие |
|
3. |
ДС-18567 49.04.000 |
Пневмосистема |
335 |
|
1 |
- |
|
|
|
|
входит: |
|
|
|
|
|
|
|
Д508-2А 08.00.000 |
Установка компрессора |
300 |
1480×780×720 |
1 |
- |
см. раскрытие |

Замена системы управления на АБЗ Bennighoven MBA 2000
Год: 2023

Асфальтный завод в городе Енисейск
Осуществлена модернизация перевод на 5 фракций.
Установлен агрегат целлюлозной добавки.
Год 2023

Асфальтный завод ДС-185 в городе Ухта.
Полное обновление абз с его сборкой на новой площадке. Поднята производительность до 60т/ч в летний период и 40т/ч в осенне/ весенний период. Установлены - полностью новая башня, агрегат питания, горелка 6.2мвт, агрегат целлюлозной добавки, минерального порошка, адгезионная добавка
Год 2023.

Силами компании ВесПро проведена капитальная реконтрукция АБЗ в г. Саратов. Нами была произведены замены: сушильного агрегата целиком, агрегат питания, система пылеочистки, блока грохота на 6 фракций с бункером горячих материалов.
Год 2024.

Проведены работы по замене грохота, бункера горячих материалов и весов на 1000кг.
Завод переведен на работу с шестью фракциями.
Год: 2024

Замена системы управления на АБЗ УДМ-120
Год: 2023

Замена системы управления на АБЗ Marini TopTower 2000
Год: 2023

Замена системы управления на АБЗ ДС-185
Год: 2023