Техническая характеристика
Нагреватель битума
Тип Периодического действия
с жаровыми трубами
Температура битума, выдаваемого в
смеситель, К(0С), до 433 (160)
Вместимость цистерны, м 3 30
Битумопроводы
Насосная установка:
- количество, шт. 2
- тип насоса Шестеренный
- производительность, т/ч 20
Разводка теплоносителя
Насосная станция теплоносителя:
Теплоноситель Масло индустриальное И-20А,
И-30А ГОСТ 20799-75
Количество масла, заливаемого в
систему, л 450
Производительность насоса при перекачивании
теплоносителя вязкостью 0,75 см 2/с,
не менее, л/с (м 3/ч) 1,1 (4,0)
|
Битумное хозяйство. |
|||||||
|
Поз. |
Обозначение |
Наименование |
Масса, 1шт., кг |
Габариты, мм (длина, ширина, высота) |
Кол-во на изделие |
Примечание |
|
|
ДС-185 |
ДС-158 |
||||||
|
1. |
ДС-185 00.15.000 |
Разводка теплоносителя |
356 |
|
1 |
1 |
|
|
|
|
входит: |
|
|
|
|
|
|
|
ДС-158 00.20.000 |
Насосная станция теплоносителя |
186 |
1187×722×940 |
1 |
1 |
см. раскрытие |
|
2. |
ДС-158 00.22.000 |
Битумопроводы |
1195 |
|
1 |
1 |
|
|
|
|
входит: |
|
|
|
|
|
|
|
Д506А 08.00.000 |
Установка насосная |
325 |
1345×760×632 |
2 |
2 |
см. раскрытие |
|
3. |
ДС-185 85.00.000Ч |
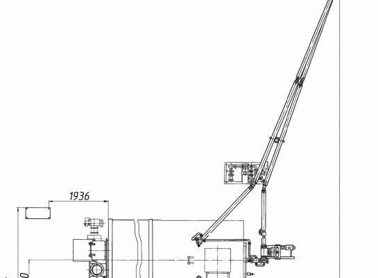
Нагреватель битума (с 01.06.05г) |
6600 |
9371×5636×8395 |
1 |
1 |
см. раскрытие |
|
|
ДС-185 84.00.000 |
Нагреватель битума (до 01.06.05г) |
7550 |
9371×4430×8395 |
- |
- |
снят с производства |

Замена системы управления на АБЗ Bennighoven MBA 2000
Год: 2023

Асфальтный завод в городе Енисейск
Осуществлена модернизация перевод на 5 фракций.
Установлен агрегат целлюлозной добавки.
Год 2023

Асфальтный завод ДС-185 в городе Ухта.
Полное обновление абз с его сборкой на новой площадке. Поднята производительность до 60т/ч в летний период и 40т/ч в осенне/ весенний период. Установлены - полностью новая башня, агрегат питания, горелка 6.2мвт, агрегат целлюлозной добавки, минерального порошка, адгезионная добавка
Год 2023.

Силами компании ВесПро проведена капитальная реконтрукция АБЗ в г. Саратов. Нами была произведены замены: сушильного агрегата целиком, агрегат питания, система пылеочистки, блока грохота на 6 фракций с бункером горячих материалов.
Год 2024.

Проведены работы по замене грохота, бункера горячих материалов и весов на 1000кг.
Завод переведен на работу с шестью фракциями.
Год: 2024

Замена системы управления на АБЗ УДМ-120
Год: 2023

Замена системы управления на АБЗ Marini TopTower 2000
Год: 2023

Замена системы управления на АБЗ ДС-185
Год: 2023