|
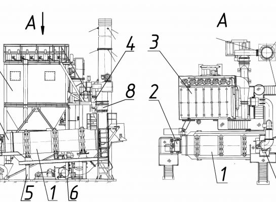
Техническая характеристика Тип агрегата………………………………………………………………………Барабанный, непрерывного действия с противоточной системой сушки Максимальная температура нагрева материала, К(0С) ………………………………………458 (185) Установленная мощность электродвигателей, кВт, не более ………………………………………85 Размеры сушильного барабана, м: -диаметр …………………………………………………………………………………………………………1,4 -длина ……………………………………………………………………………………………………………5,6 -угол наклона, град ……………………………………………………………………………………………3,5 Частота вращения сушильного барабана, с-1 (об/мин) …………………………………………0,18 (11) Управление работой горелки…………………………………………………………………Дистанционное и автоматическое Высота дымовой трубы, м ………………………………………………………………………………17,61 Диаметр дымовой трубы, м ………………………………………………………………………………0,793 |
* ДС-1857 20.00.000Ч Агрегат сушильный - для работы на жидком топливе, ДС-18567 20.00.000Ч Агрегат сушильный - для работы на природном газе.
|
ДС-1857 20.00.000Ч Агрегат сушильный. *ДС-18567 20.00.000Ч Агрегат сушильный. |
|||||||
|
Поз. |
Обозначение |
Наименование |
Масса, 1шт., кг |
Габариты, мм (длина, ширина, высота) |
Кол-во на изделие |
Примечание |
|
|
ДС-185 |
ДС-158 |
||||||
|
1. |
ДС-185 23.00.000 |
Установка сушильного барабана |
5465 |
9100×2183×3378 |
1 |
- |
Для работы на жидком топливе |
|
|
ДС-1856 21.00.000 |
Установка сушильного барабана |
5450 |
8050×2464×3378 |
1 |
- |
Для работы на природном газе |
|
2. |
ДС-185 23.06.000 |
Агрегат топочный (входит в поз.1) |
521 |
496ר1468×1945 |
1 |
- |
Для работы на жидком топливе |
|
|
ДС-18561 25.00.000 |
Установка газовой горелки |
1970 |
6665×3030×5255 |
1 |
- |
Для работы на природном газе |
|
3. |
ДС-1857 48.00.000Ч |
Установка рукавного фильтра |
14720 |
|
1 |
1 |
Для работы на жидком топливе |
|
|
ДС-18567 48.00.000Ч |
Установка рукавного фильтра |
14250 |
|
1 |
1 |
Для работы на природном газе |
|
4. |
ДС24Б 00.00.370 |
Затвор («мигалка») |
19 |
390×285×664 |
1 |
1 |
|
|
5. |
ДС117-2К 20.00.020 |
Опора |
34,7 |
Н=930 |
2 |
2 |
|
|
6. |
ДС117-2К 20.00.010 |
Опора |
38,1 |
Н=1143 |
2 |
2 |
|
|
7. |
ДС-185 20.00.310 |
Установка преобразователя |
2,1 |
180×140×230 |
1 |
- |
|
|
8. |
ДС-158 20.00.120 |
Газоход |
81,3 |
1572×724×450 |
1 |
1 |
Для работы на жидком топливе |
|
|
ДС-1856 20.00.060 |
Переходник |
157 |
1572×724×450 |
1 |
- |
Для работы на природном газе |
*ДС-1857 20.00.000Ч Агрегат сушильный - для работы на жидком топливе, ДС-18567 20.00.000Ч Агрегат сушильный - для работы на природном газе.

Замена системы управления на АБЗ Bennighoven MBA 2000
Год: 2023

Асфальтный завод в городе Енисейск
Осуществлена модернизация перевод на 5 фракций.
Установлен агрегат целлюлозной добавки.
Год 2023

Асфальтный завод ДС-185 в городе Ухта.
Полное обновление абз с его сборкой на новой площадке. Поднята производительность до 60т/ч в летний период и 40т/ч в осенне/ весенний период. Установлены - полностью новая башня, агрегат питания, горелка 6.2мвт, агрегат целлюлозной добавки, минерального порошка, адгезионная добавка
Год 2023.

Силами компании ВесПро проведена капитальная реконтрукция АБЗ в г. Саратов. Нами была произведены замены: сушильного агрегата целиком, агрегат питания, система пылеочистки, блока грохота на 6 фракций с бункером горячих материалов.
Год 2024.

Проведены работы по замене грохота, бункера горячих материалов и весов на 1000кг.
Завод переведен на работу с шестью фракциями.
Год: 2024

Замена системы управления на АБЗ УДМ-120
Год: 2023

Замена системы управления на АБЗ Marini TopTower 2000
Год: 2023

Замена системы управления на АБЗ ДС-185
Год: 2023