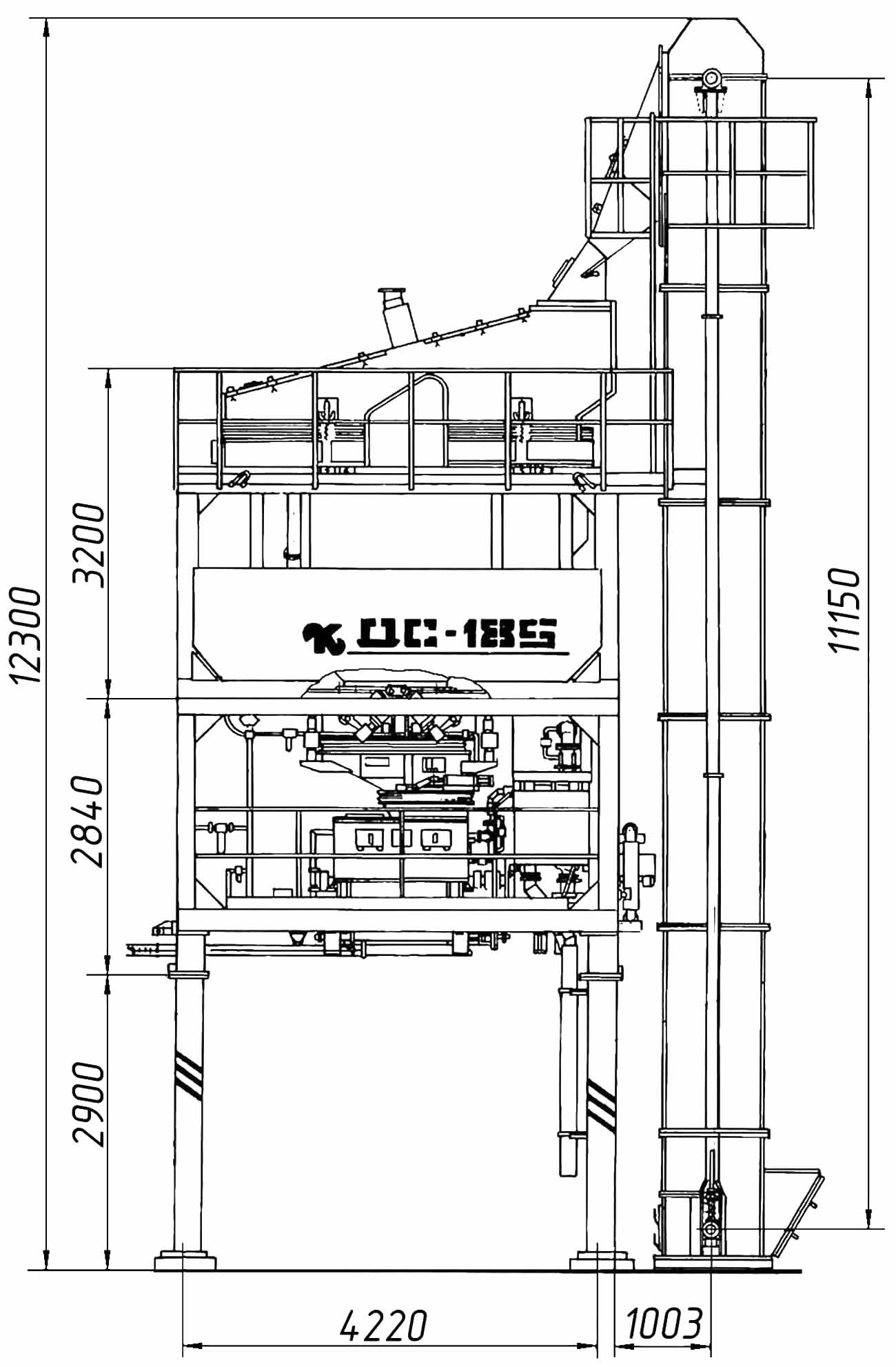
Техническая характеристика
Тип агрегата Башенный со смесителем
периодического действия
Установленная мощность двигателей,
кВт, не более 41
Элеватор:
- тип Цепной, вертикальный с
сомкнутыми ковшами, гра-
витационной выгрузки
Тип смесителя Двухвальный, лопастной
Максимальная масса замеса, кг 730
Время приготовления одного замеса, с 47 ÷ 63
Тип грохота Гирационный
Количество рассортированных фракций 4
Размеры фракций, мм до 5; 5-10; 10-20; 20 - 40
Вместимость бункера для горячих
материалов,м3, не менее 8,3
Погрешность взвешивания, кг:
- каменных материалов 5,25
- минерального порошка и пыли 1,75
- битума 1,4
|
ДС-185 40.00.000 Агрегат смесительный |
|||||||
|
Поз. |
Обозначение |
Наименование |
Масса, 1шт., кг |
Габариты, мм (длина, ширина, высота) |
Кол-во на изделие |
Примечание |
|
|
ДС-185 |
ДС-158 |
||||||
|
1. |
ДС-185 41.00.000 |
Элеватор |
2873 |
12302×3221×2476 |
1 |
- |
см. раскрытие |
|
|
ДС-158 41.00.000 |
Элеватор |
2644 |
11600×3221×2476 |
- |
1 |
|
|
2. |
ДС-185 48.00.000 |
Блок грохота |
1415 |
4176×2047×1706 |
1 |
- |
см. раскрытие |
|
3. |
ДС-185 47.00.000 |
Блок |
3120 |
5452×3128×3200 |
1 |
- |
см. раскрытие |
|
4. |
ДС-185 45.00.000 |
Блок нижний |
5450 |
5916×3002×2866 |
1 |
- |
см. раскрытие |
|
5. |
ДС-158 40.00.190 |
Опора |
105 |
2900×□350 |
1 |
1 |
|
|
6. |
ДС-185 40.00.090 |
Опора |
101 |
2900×□350 |
1 |
1 |
|
|
7. |
ДС-158 40.00.150 |
Опора |
88,3 |
2900×□350 |
1 |
1 |
|
|
8. |
ДС-158 40.00.220 |
Опора |
98,7 |
2900×□350 |
1 |
1 |
|
|
9. |
ДС-185 40.02.000 |
Бункер излишков |
264 |
2208×865×2240 |
1 |
1 |
см. раскрытие |
|
10. |
ДС-185 40.00.010 |
Труба |
34 |
1847×339 |
1 |
- |
|
|
11. |
ДС-185 40.00.020 |
Течка |
17 |
698ר240 |
1 |
- |
|
|
12. |
ДС-158 40.00.010 |
Лоток |
97,5 |
1885×480×1550 |
1 |
1 |
|
|
13. |
ДС117-2К 40.00.004 |
Чехол |
0,28 |
350ר250 |
1 |
1 |
|

Замена системы управления на АБЗ Bennighoven MBA 2000
Год: 2023

Асфальтный завод в городе Енисейск
Осуществлена модернизация перевод на 5 фракций.
Установлен агрегат целлюлозной добавки.
Год 2023

Асфальтный завод ДС-185 в городе Ухта.
Полное обновление абз с его сборкой на новой площадке. Поднята производительность до 60т/ч в летний период и 40т/ч в осенне/ весенний период. Установлены - полностью новая башня, агрегат питания, горелка 6.2мвт, агрегат целлюлозной добавки, минерального порошка, адгезионная добавка
Год 2023.

Силами компании ВесПро проведена капитальная реконтрукция АБЗ в г. Саратов. Нами была произведены замены: сушильного агрегата целиком, агрегат питания, система пылеочистки, блока грохота на 6 фракций с бункером горячих материалов.
Год 2024.

Проведены работы по замене грохота, бункера горячих материалов и весов на 1000кг.
Завод переведен на работу с шестью фракциями.
Год: 2024

Замена системы управления на АБЗ УДМ-120
Год: 2023

Замена системы управления на АБЗ Marini TopTower 2000
Год: 2023

Замена системы управления на АБЗ ДС-185
Год: 2023