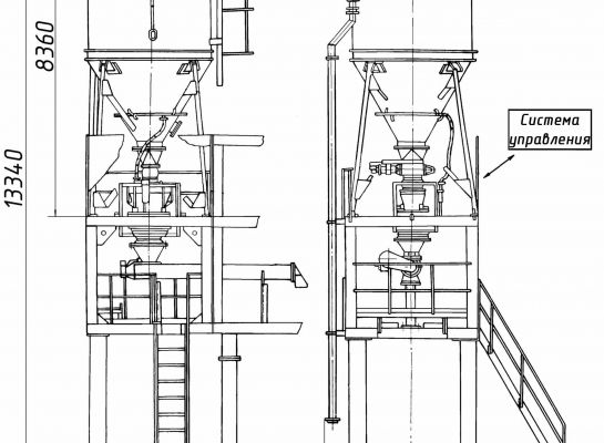
Техническая характеристика
Вместимость бункера агрегата минерального порошка, м 3, не менее 23
Способ загрузки бункера Пневмосредствами цементовоза или стационарного склада
Рабочее давление воздуха при загрузке бункера, МПа (кГс/см 2) 0,1 (1)
*Агрегат минерального порошка ДС-185 0300000Ч поставляется с системой управления (под тензометрические датчики). В состав системы управления входит шкаф управления, кабели, клеммные коробки.
Если в составе асфальтосмесительной установки уже имеется весодозирующее устройство ВДУ то необходимо заказывать агрегат минерального порошка ДС-185 0300000 (без системы управления).
|
ДС-185 03.00.000Ч Агрегат минерального порошка |
|||||||
|
Поз. |
Обозначение |
Наименование |
Масса, 1шт., кг |
Габариты, мм (длина, ширина, высота) |
Кол-во на изделие |
Примечание |
|
|
ДС-185 |
ДС-158 |
||||||
|
1. |
ДС-185 03.01.000 |
Бункер |
2319 |
2600×2600×8360 |
1 |
1 |
см. раскрытие |
|
2. |
ДС59 06.00.160 |
Труба |
88,2 |
6400ר170 |
1 |
1 |
|
|
3. |
ДС-158 03.00.001 |
Чехол |
0,5 |
Ø520×420 |
1 |
1 |
|
|
4. |
ДС-158 03.00.003 |
Чехол |
1,7 |
Ø1080×850 |
1 |
1 |
|
|
5. |
ДС-158 03.00.260 |
Опора |
103 |
3300×350 |
1 |
1 |
с 01.01.2007г. |
|
6. |
ДС-158 03.00.270 |
Опора |
103 |
3300×350 |
1 |
1 |
с 01.01.2007г. |
|
7. |
ДС59 00.00.114 |
Рукав |
1 |
2000ר40 |
1 |
1 |
|
|
8. |
ДС-185 03.00.030 |
Шнек |
332 |
3935×780×440 |
1 |
1 |
см. раскрытие |
|
9. |
ДС-185 05.00.000 |
Блок |
1240 |
2610×2610×2990 |
1 |
- |
под тензодатчики, см. раскрытие |
|
|
ДС-158 05.00.000В |
Блок |
1788 |
2610×2610×2990 |
- |
1 |
С рычажной системой без весоголовки |
|
10. |
ДС-185 03.00.080 |
Лестница |
112 |
700×2170×4410 |
1 |
1 |
|
|
11. |
|
Система управления |
|
|
1 |
- |
|

Замена системы управления на АБЗ Bennighoven MBA 2000
Год: 2023

Асфальтный завод в городе Енисейск
Осуществлена модернизация перевод на 5 фракций.
Установлен агрегат целлюлозной добавки.
Год 2023

Асфальтный завод ДС-185 в городе Ухта.
Полное обновление абз с его сборкой на новой площадке. Поднята производительность до 60т/ч в летний период и 40т/ч в осенне/ весенний период. Установлены - полностью новая башня, агрегат питания, горелка 6.2мвт, агрегат целлюлозной добавки, минерального порошка, адгезионная добавка
Год 2023.

Силами компании ВесПро проведена капитальная реконтрукция АБЗ в г. Саратов. Нами была произведены замены: сушильного агрегата целиком, агрегат питания, система пылеочистки, блока грохота на 6 фракций с бункером горячих материалов.
Год 2024.

Проведены работы по замене грохота, бункера горячих материалов и весов на 1000кг.
Завод переведен на работу с шестью фракциями.
Год: 2024

Замена системы управления на АБЗ УДМ-120
Год: 2023

Замена системы управления на АБЗ Marini TopTower 2000
Год: 2023

Замена системы управления на АБЗ ДС-185
Год: 2023